Перейти к содержимому

  • Щомыслицкий с/с, АД Р1 "Брест-Минск",
    9-ый км, территория заправки А100
  • Режим работы
График работы

  • Понедельник
    9:00 – 17:30
  • Вторник
    9:00 – 17:30
  • Среда
    9:00 – 17:30
  • Четверг
    9:00 – 17:30
  • Пятница
    9:00 – 17:30
  • Суббота
    10:00 – 16:00
  • Воскресенье
    Выходной
  • Щомыслицкий с/с, АД Р1 "Брест-Минск",
    9-ый км, территория заправки А100

Станция биологической очистки БИОДЕКА-4 П-700

Код товара: 1017-
Краткие характеристики
Объем переработки стоков

800 л/сут

Залповый сброс

190 литров

Общие характеристики
  • Объем переработки стоков, литров в сутки
    800
  • Залповый сброс, литров (единовременный прием стоков)
    190
  • Степень очистки, %
    98
  • Способ отведения очищенной воды
    Принудительно
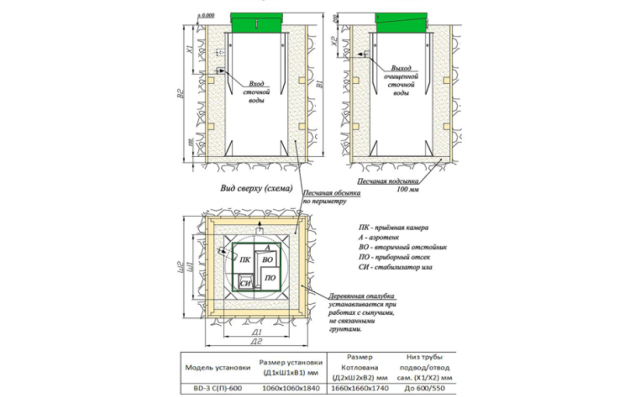
  • Габариты (Длина × Ширина × Высота, мм)
    1060 × 1060 × 2090
О товаре
  • Срок службы, лет
    50
  • Страна производитель
    Россия
  • Гарантия, месяцев
    36

БиоДека-4 П-700 – аэрационный септик для частного дома с насосом для вывода чистой воды. Применяется в домах без центральной канализации: способен очистить стоки от унитаза, раковины, бытовых приборов и душа до состояния технической воды без запаха и цвета.

Рассчитан на четырех пользователей. Чаще устанавливается в дачных домах без ванны, так как залповый сброс равен 190 литрам (для ванны нужен от 250 л).

Характеристики станции БиоДека 4

Производительность, л/сут

800

Количество условных пользователей, чел

4

Залповый сброс, л

190

Габариты (ДхШхВ), мм

1060х1060х2090

Низ трубы подводящей, мм

700

Расход электричества в сутки, кВт*

1,56


Модификации станции биологической очистки БиоДека 4

У БиоДеки 4 есть две модификации: С-700 и П-700. «С» – самотечная станция, то есть вывод чистой воды из септика происходит через отводящую трубу. Ее монтируют в двух случаях:

  1. В фильтрующем грунте в паре с фильтрующим колодцем.
  2. Если на участке недалеко от септика есть склон или глубокая канава. Глубокая канава – это от 500 мм в глубину, так как от нижнего лотка трубы до дна или до максимального уровня воды должно быть 5-7.

В остальных случаях устанавливают принудительную версию («П»). В ней установлен насос для принудительной откачки чистой воды, с помощью которого воду можно поднять на поверхность и слить в неглубокую придорожную/дренажную канаву.

Самотечную станцию можно в любой момент переделать в принудительную. Это необходимо, если, например, сосед закопал канаву и уровень воды в ней поднялся, затопив самотечный выход. В этом случае нужно будет установить на отвод заглушку и встроить насос. Тогда чистую воду можно будет поднять под самую кромку канавы.

Модификаций с удлиненной горловиной у БиоДеки 4 нет. Если ваша фановая труба закопана ниже 600 мм от поверхности, то ее нужно будет откопать и поднять. Если это невозможно, обратите внимание на станцию БиоДека 5 с удлиненной горловиной.


Получите бесплатно книгу в Viber

Зполните форму, что бы мы вам прислали книгу

Полезные статьи

Долгое время центральной канализации не могли найти хорошую альтернативу, кроме выгребных ям, доставлявших массу неудобств. Ситуа…
Жизнь за городом – это не только чистый воздух и экологически чистые продукты, но и неудобства, связанные с отсутствием инженерны…
Неблагоприятная экологическая ситуация вынуждает жителей мегаполисов покидать городские квартиры и селиться за городом. Поэтому в…