Перейти к содержимому

  • Щомыслицкий с/с, АД Р1 "Брест-Минск",
    9-ый км, территория заправки А100
  • Режим работы
График работы

  • Понедельник
    9:00 – 17:30
  • Вторник
    9:00 – 17:30
  • Среда
    9:00 – 17:30
  • Четверг
    9:00 – 17:30
  • Пятница
    9:00 – 17:30
  • Суббота
    10:00 – 16:00
  • Воскресенье
    Выходной
  • Щомыслицкий с/с, АД Р1 "Брест-Минск",
    9-ый км, территория заправки А100

Станция биологической очистки БИОДЕКА-5 С-800

Код товара: 1021-
Краткие характеристики
Объем переработки стоков

1000 л/сут

Залповый сброс

250 литров

Общие характеристики
  • Объем переработки стоков, литров в сутки
    1000
  • Залповый сброс, литров (единовременный прием стоков)
    250
  • Степень очистки, %
    95
  • Способ отведения очищенной воды
    Самотечно
  • Габариты (Длина × Ширина × Высота, мм)
    1060 × 1060 × 2340
О товаре
  • Срок службы, лет
    50
  • Страна производитель
    Россия
  • Гарантия, месяцев
    36

БиоДека 5 – самая продаваемая из всех станций БиоДека. Она подходит для средних семей из 3-5, при расходе воды 200 в сутки на 1 жильца. Залповый сброс станции составляет 250. Этого хватает для пользования душевой кабиной, мойкой, унитазом, стиральной и посудомоечной машинами. Можно принимать ванну стандартного объема 200 л, но при этом есть риск затопления септика.

Корпус септика БиоДека 5

Цилиндрический корпус с грунтозацепами хорошо держится в грунте и противостоит давлению. Материал корпуса – вспененный полипропилен, жесткий материал с хорошей теплоизоляцией. Сварка корпуса выполняется на станке, шов делается на всю толщину и имеет высокую прочность.

Характеристики септика БиоДека 5   

Модель

Тип отвода стока

Производительность, л/сутки

Залповый сброс

Глубина врезки подводящей/отводящей труб, мм**

Вес, кг

Габариты (ДхШхВ), мм

Расход энергии, кВт/сутки

Biodeka 5 С-800*

Самотечный

1000

250

До 800/550

150

1060 х 1060 х 2340

1,08

Biodeka 5 П-800

Принудительный

1000

250

До 800/550

150

1060 х 1060 х2340

1,08

Biodeka 5 С-1300

Самотечный

1000

250

До 1300/1050

170

1060 х 1060 х 2840

1,08

Biodeka 5 П-1300

Принудительный

1000

250

До 1300/1050

170

1060 х 1060 х 2840

1,08

Biodeka 5 С-1800

Самотечный

1000

250

До 1800/1550

200

1060 х 1060 х 3340

1,08

Biodeka 5 П-1800

Принудительный

1000

250

До 1800/1550

200

1060 х 1060 х 3340

1,08


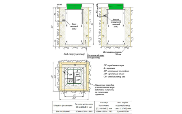
*Маркировка  станции: 5 – число условных пользователей, С или П – самотечный или принудительный отвод стока, 800 – максимальная глубина врезки подводящей трубы.

**У станций BioDeka 5 с самотечным сбросом стока отводящий патрубок врезан на заводе на указанной глубине. Подводящий патрубок врезают при монтаже, в зависимости от глубины вывода фановой трубы. В таблице указана максимальная глубина врезки. У принудительных моделей врезают и герметизируют и входной, и выходной патрубки.

Принцип работы септика БиоДека 5

БиоДека 5 – станция с приемной камерой-усреднителем. Сток поступает в приемную камеру, перемешивается и усредняется по концентрации. Подготовленный сток перекачивается из приемной камеры в аэротенк. Здесь сточные воды обогащаются кислородом, что способствует окислению содержащегося в моче аммония до нитратов и нитритов. Органика, которая содержится в фекальных массах, разлагается и усваивается аэробными микроорганизмами.  Из камеры аэрации сток попадает во вторичный отстойник, где при отсутствии кислорода протекают процессы денитрификации – восстановления нитритов и нитратов до газообразного азота.  Отработанный ил накапливается в отдельной камере – иловом стабилизаторе. Из вторичного отстойника очищенная вода отводится на рельеф.

Степень очистки стока в станции БиоДека достигает 98,4% по БПК5. Из станции отводится вода без запаха. Для отвода стока не требуется поле рассеивания или фильтрующий колодец. Этим БиоДека выгодно отличается от самотечных септиков-отстойников. В них стоки очищаются максимум до 60% и после септика обязательна почвенная доочистка.

Электрооборудование септика БиоДека 5

Воздух в очистную установку подается компрессором. В станции БиоДека 5 устанавливается 1 компрессор. Станция однорежимная, то есть, компрессор подает воздух на все эрлифты, и нет чередования прямой и обратной фаз. Это выгодно отличает БиоДеку от двухрежимных станций с одним компрессором, в которых переключение фаз происходит через ненадежный электромагнитный клапан и требуется стабилизатор напряжения. Например, в септиках Юнилос Астра и Волгарь установка стабилизатора – обязательное условие гарантии на электрооборудование.

Септик БиоДека 5 укомплектован аварийной сигнализацией. Она состоит из аварийной лампы и поплавкового датчика. При монтаже лампу привинчивают на крышку септика, а датчик опускают в приемную камеру. При подъеме воды до критического уровня поплавок поднимается, и лампа загорается, сигнализируя о переполнении.

Отвод стока из БиоДеки

В принудительных моделях имеется емкость для установки дренажного насоса. Очищенные стоки собираются в емкости и периодически откачиваются в канаву. Принудительные станции БиоДека 5 устанавливаются на участках с глинистым грунтом и с высокими грунтовыми водами. Канаву в таких случаях делают неглубокой, до 60-70. В фильтрующих грунтах (песок, супесь) и при низких грунтовых водах монтируют станции БиоДека 5 с самотечным отводом, канава может быть глубокой.

Получите бесплатно книгу в Viber

Зполните форму, что бы мы вам прислали книгу

Полезные статьи

Долгое время центральной канализации не могли найти хорошую альтернативу, кроме выгребных ям, доставлявших массу неудобств. Ситуа…
Жизнь за городом – это не только чистый воздух и экологически чистые продукты, но и неудобства, связанные с отсутствием инженерны…
Неблагоприятная экологическая ситуация вынуждает жителей мегаполисов покидать городские квартиры и селиться за городом. Поэтому в…