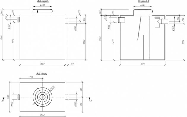
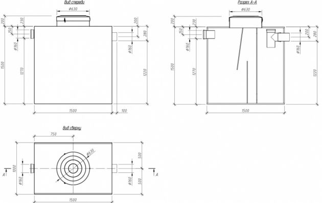
Промышленный жироуловитель Alta М-OS 22-1125
Промышленный жироуловитель Alta М-OS
Промышленный жироуловитель Alta М-OS выделяет и удерживает нежелательные жировые массы из сточных вод до их попадания в трубопровод внутренней канализации. Жироуловитель Alta М-OS изготовлен из пищевого пластика и предназначен для очистки хозяйственно-бытовых сточных вод (ХБСВ), поступающих предприятий общественного питания и других пищевых производств, жиров растительного и животного происхождения.
Преимущества жироуловителя Alta М-OS
- Инновации при проектировании жироуловителя увеличивают эффективность очистки стока.
- Продуманность конструкции обеспечивает удобный доступ к накопителю жиров.
- Эффективность - очищает до 10 своих объемов в час (без затрат электроэнергии).
- Современные полимерные материалы гарантируют срок эксплуатации более 50-ти лет.